Архитектура
Интерьер
BIM
О нас
Услуги
Контакты
8-800-550-97-55
Архитектура
Интерьер
BIM
О нас
Услуги
Контакты
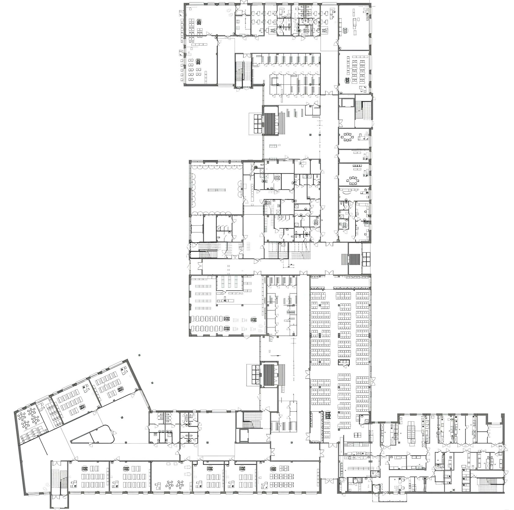
ШКОЛА №183, ЕКАТЕРИНБУРГ
Общая площадь: 2964 м²
Стадия реализации: концепция
Планировка